Eldeco Ballads of Bliss Yamuna Expressway Interior
Eldeco Ballads of Bliss Yamuna Expressway Interior

Eldeco Ballads of Bliss Yamuna Expressway – A New Address for Smart Living

The Eldeco Group, known for delivering quality homes across India, is now launching an exciting new residential project — Eldeco Ballads of Bliss Yamuna Expressway, located in Sector 22D, Greater Noida. This thoughtfully planned township offers beautifully designed homes that combine comfort, functionality, and style. With modern amenities, green open spaces, and smooth road connectivity, it promises a lifestyle that is both peaceful and convenient. Whether you're a first-time homebuyer, a growing family looking for more space, or an investor seeking long-term value, this project caters to all needs. The homes are built with attention to detail, ensuring you get ample natural light, good ventilation, and a sense of comfort in every corner. Designed to offer a mix of modern living and community charm, Eldeco Ballads of Bliss Yamuna Expressway is where your dream of a perfect home becomes a reality.

One of the biggest highlights of this project is its prime location. Situated close to the upcoming Noida International Airport (Jewar Airport), the area is expected to witness rapid development and rise in property value in the coming years. This makes it an ideal place not just for living, but also for investing. The project enjoys great connectivity to key parts of Noida, Greater Noida, and Delhi through the Yamuna Expressway, and is surrounded by top schools, hospitals, universities, and shopping areas. It’s a location where everything you need is just minutes away, helping you save time and lead a more balanced life. On this page, you’ll find detailed information about Eldeco Ballads of Bliss Yamuna Expressway — including its standout features, location benefits, modern amenities, available floor plans, and reasons why this project is a smart and future-ready choice for homeowners and investors alike.

About Eldeco Group

Founded more than 40 years ago, the Eldeco Group has delivered over 175 successful projects in cities like Delhi NCR, Lucknow, Kanpur, and Agra. Eldeco is known for:

  • High-quality construction
  • On-time delivery
  • Transparent dealings
  • Focus on customer satisfaction

Their projects offer a mix of comfort, luxury, and smart investment opportunities. Eldeco Ballads of Bliss Yamuna Expressway continues this legacy, bringing modern living spaces to one of the most promising areas of NCR.

Project Overview

Eldeco Ballads of Bliss Yamuna Expressway is a thoughtfully planned residential community that offers:

  • 2 BHK apartments
  • 3 BHK apartments
  • 4 BHK spacious homes
  • Residential plots

The project combines luxury with green living, offering wide open spaces, smart designs, and future-ready infrastructure.

Eldeco Ballads of Bliss Yamuna Expressway Sector 22D Highlights

Highlights :

  • Location: Sector 22D, Yamuna Expressway, Greater Noida
  • Property Types: Apartments and Plots
  • Green Spaces: Landscaped parks and gardens
  • Amenities: Sports facilities, clubhouse, wellness zones
  • Smart Security: CCTV, access control, and trained staf
  • Developer: Eldeco Group – Trusted Real Estate Brand
  • Kids Facilities: Children's Play Area and Activity Zones
  • Power Backup: 24x7 Electricity Backup for Common Areas
  • Trusted Brand: Delivered multiple successful projects across India
  • RERA No. : Coming Soon

This project is ideal for families, working professionals, and investors looking for a peaceful yet connected lifestyle.

Price

3 BHK

₹ On Request

Amenities

Swimming Pool Swimming Pool
Club House Club House
GYM GYM
Jogging Track Jogging Track
Kid's Play Kid's Play
Power Backup Power Backup
Open Space Open Space
Parking Parking
Party Hall Party Hall
Sport Sport
Water Supply Water Supply

Interior Features

Inside your home at Eldeco Ballads of Bliss Yamuna Expressway, you will find:

  • Premium vitrified tile flooring
  • Modular kitchens with granite countertops
  • Branded bathroom fittings
  • Anti-skid tiles in bathrooms and balconies
  • High-quality doors and windows
  • Painted walls with durable finishes

The design focuses on blending elegance with practicality for everyday living.

Investment Benefits

Buying a home at Eldeco Ballads of Bliss Yamuna Expressway is not just about living — it’s also about growing your investment.

Why Invest Here:
  • Jewar Airport Boost: Property prices are expected to rise sharply once the airport becomes operational.
  • Industrial Growth: New companies are setting up businesses nearby, creating jobs and housing demand.
  • Strong Rental Returns: Professionals moving into the area will drive rental income.
  • Brand Trust: Properties by Eldeco have a history of excellent resale value.

Future Developments Around

Several major projects are planned around Eldeco Ballads of Bliss Yamuna Expressway:

  • Noida International Airport — Phase 1 completion by 2025
  • Film City — A massive entertainment hub nearby
  • Metro Expansion — Proposed metro line extension to Yamuna Expressway
  • Industrial Corridors — New electronics manufacturing hubs
  • Tourism Growth — New hotels, theme parks, and shopping zones

These developments will boost the overall value and appeal of the area.

Conclusion: A Smart Step Towards a Brighter Future

Eldeco Ballads of Bliss Yamuna Expressway is more than just a residential project. It’s a smart investment, a modern lifestyle, and a peaceful environment — all in one.

With top-class amenities, a future-ready location, eco-friendly designs, and the trust of Eldeco, this project is ideal for homeowners and investors alike.

Don’t miss this opportunity to be part of NCR’s fastest-growing neighborhood.

Floor Plan

2 BHK
3 BHK
4 BHK
Eldeco Ballads of Bliss Yamuna Expressway Floor Plan
Eldeco Ballads of Bliss Yamuna Expressway Floor Plan
Eldeco Ballads of Bliss Yamuna Expressway Floor Plan

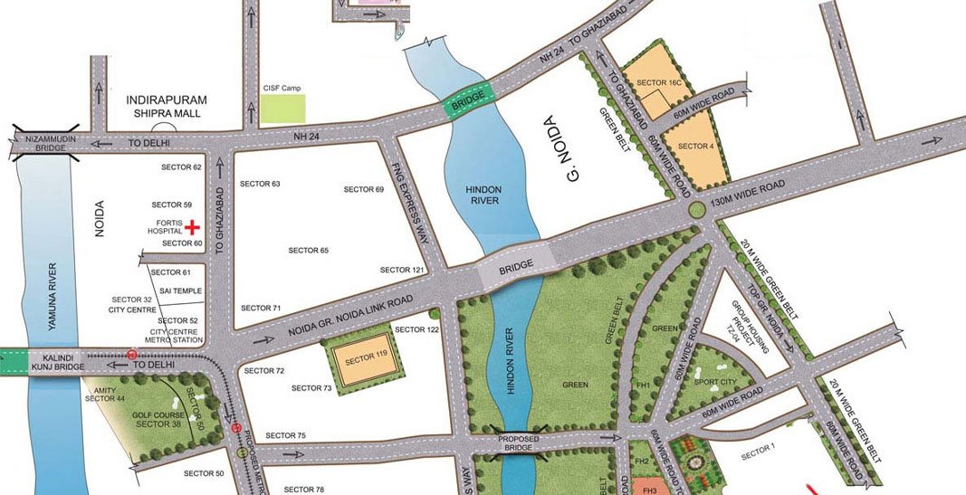
Location Advantage

  • Yamuna Expressway – 2 Mins
  • Proposed Noida International Airport – 15 Mins
  • Formula 1 Circuit (Buddh International Circuit) – 10 Mins
  • Noida International University – 10 Mins
  • Proposed Medicity – 10 Mins
  • Proposed Tech Park – 10 Mins
  • Proposed Malls and Resorts – 15 Mins
  • Film City (Yamuna Expressway) – 20 Mins
  • Noida International Stadium – 25 Mins
Location Image
Enquire Now Whats App Tap To Call